Property Description
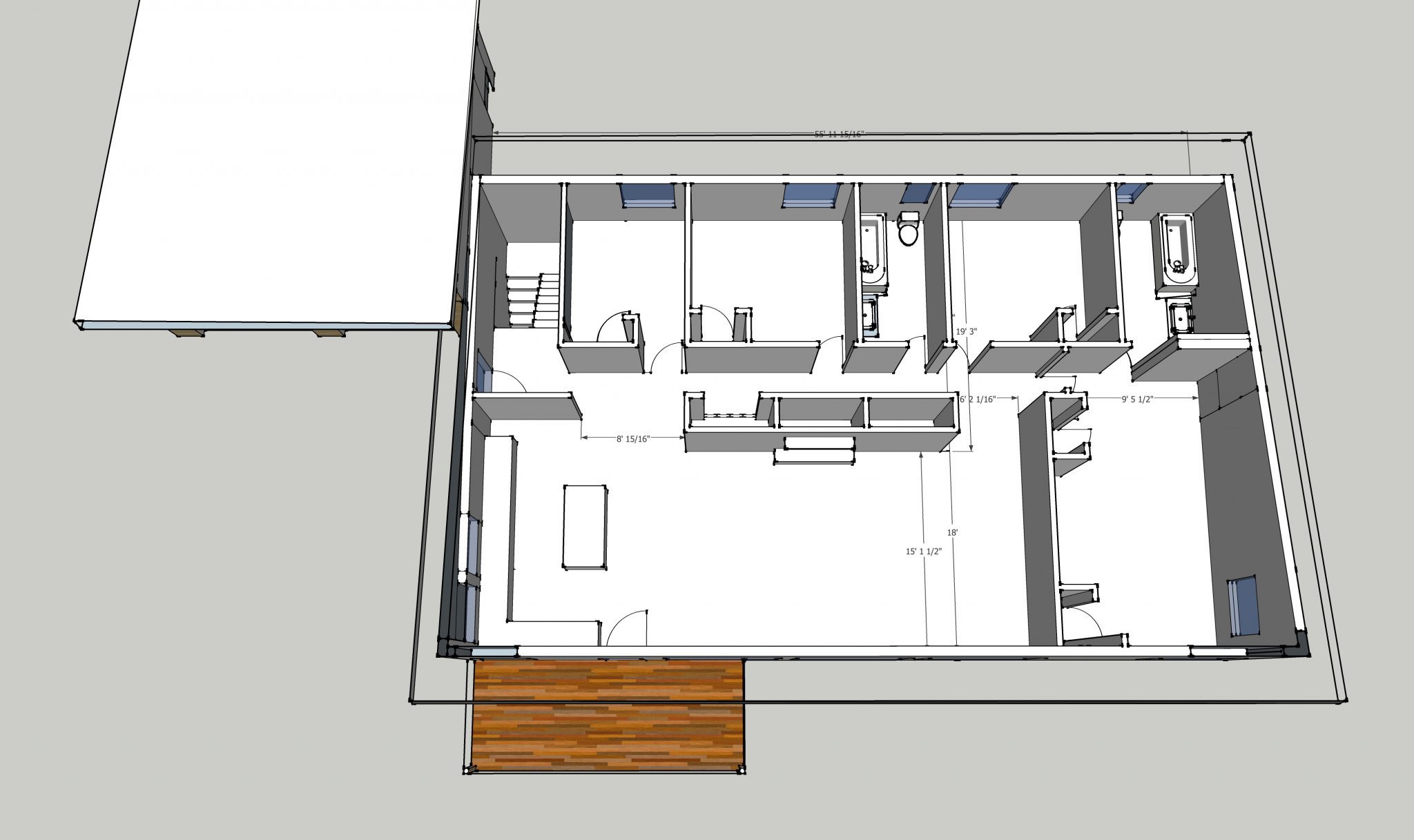
Opportunity to build your dream home in the prestigious Fawn Ridge development minutes from Main Street yet tucked away in the woods! Building envelope will be cleared, and building plans included as well as HOA approval and Joint Review Board Approval. Plans are for a 4,000 SF modern mountain with attached garage and full basement. If this is not your style, or something you would want to modify, you can absolutely change and seek reapproval! Lot is .72 acres, surrounded by nice pines. Mountain views a possibility from the second story.
Documents
City: Lake Placid
Area: High Peaks, Lake Placid Area
State/County: NY, Essex County
Zip: 12946
Country: United States
Property Id: 19991
Price: $ 225,000
Property Size: 1 ft2
Property Lot Size: 0 ft2
Rooms: 0
Bedrooms: 0
Bathrooms: 0
MLS #: 169740
Type: Vacant Land
Views: Possibly Mountain
School District: Lake Placid
Village Taxes: 1457
















